Week 10: verbouw pakhuis Gouda tot woonloft
Achter de gevels van deze pandjes was tot voor kort een stroopwafelpakhuis gevestigd.
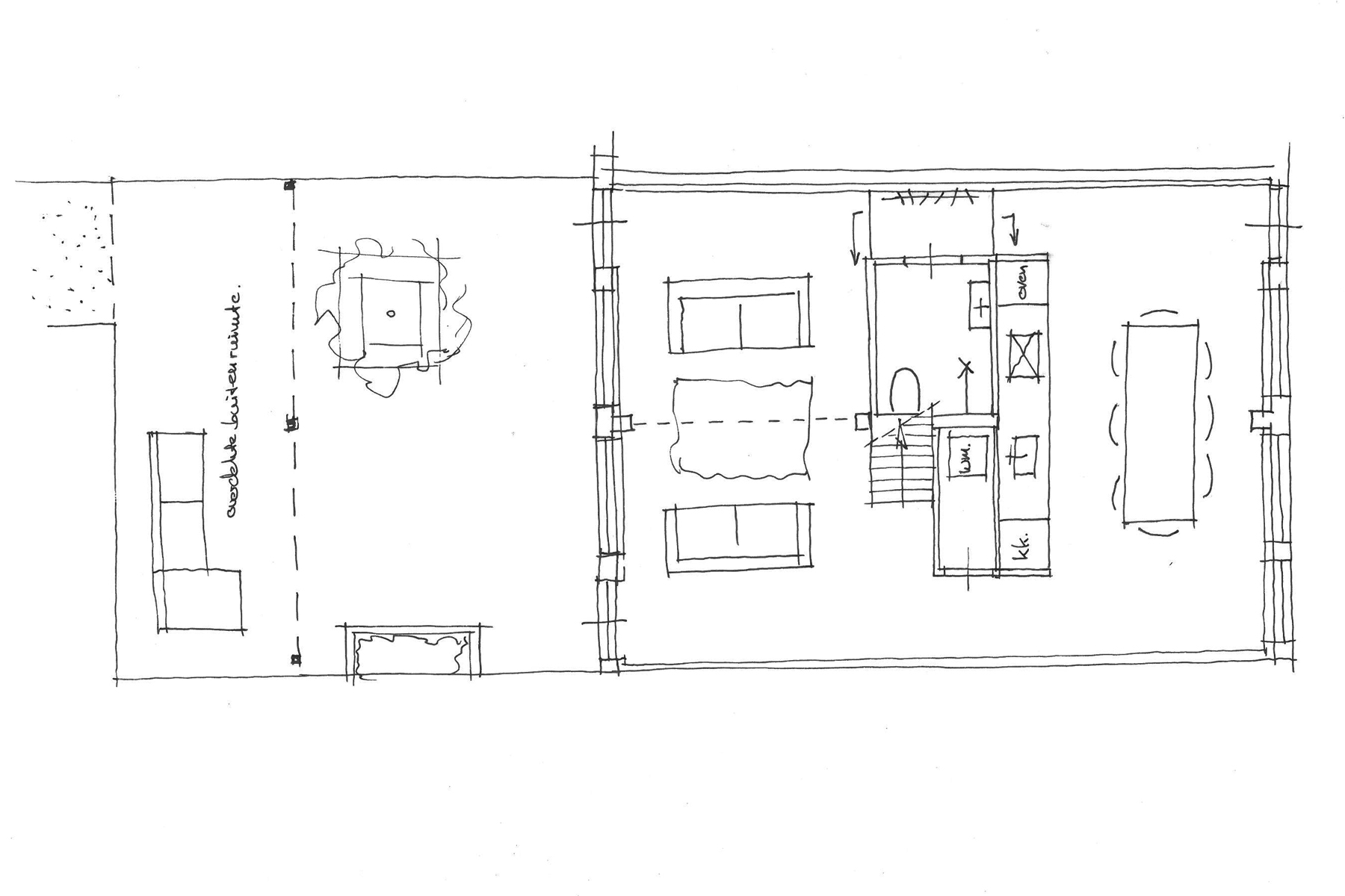
Voor de panden worden nu plannen gemaakt om deze te verbouwen tot een woonloft. Hiervoor zijn een een aantal varianten opgesteld om op basis hiervan tot het meest ideale plan te komen.
Waar eerst de stroopwafels stonden opgestapeld, ontstaat straks een lichte en ruime woning die voorbereid is op de toekomst.



